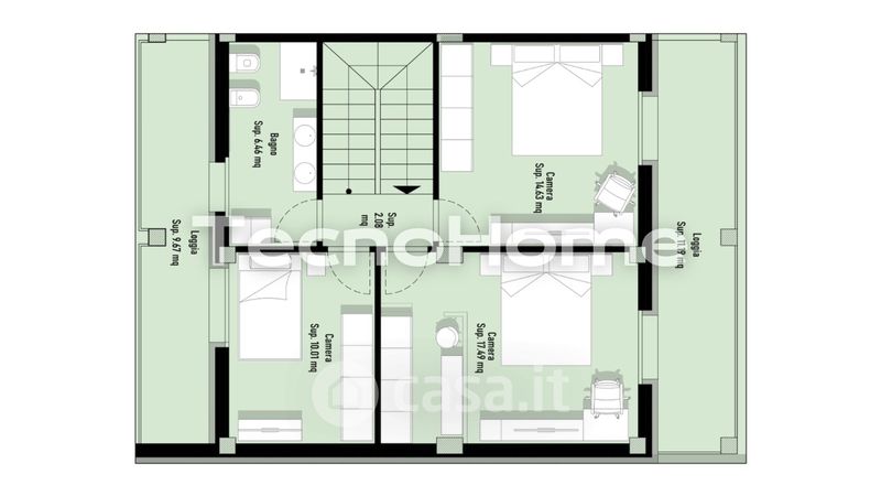
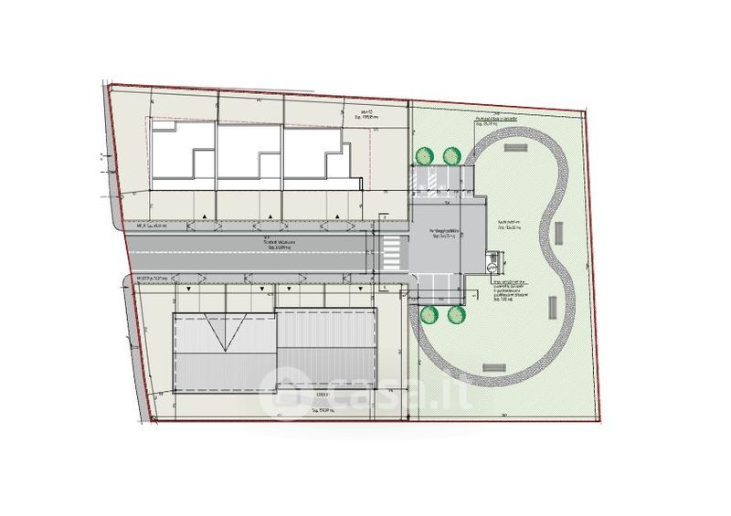
Villetta a schiera in vendita Via Campedello 8, Sissa Trecasali
Salva
Casa.it
1/13
  • Street View
  • Map