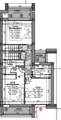
Villetta a schiera in vendita Via Lametta , Soliera
Salva
Casa.it
1/25
  • Street View
  • Map