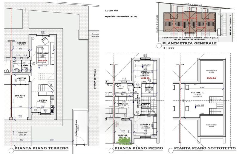
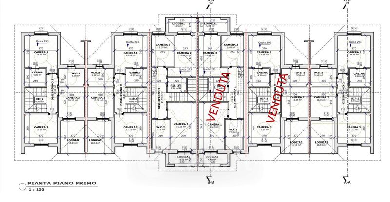
Villetta a schiera in vendita Via Nilde Iotti , Soragna
Salva
Casa.it
1/39
  • Street View
  • Map