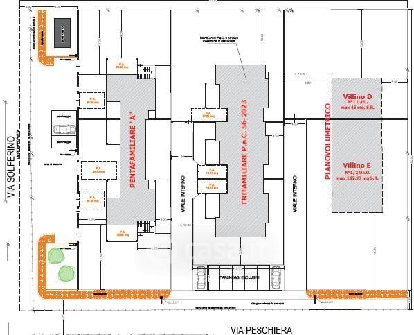
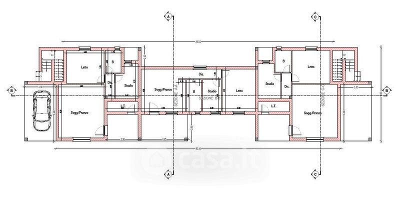
Villetta a schiera in vendita Via Solferino , Anzio
Salva
Casa.it
1/19
  • Street View
  • Map