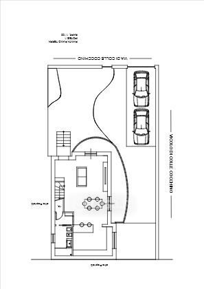
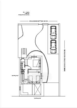
Villetta a schiera in vendita Via Colle Cocchino 93, Anzio
Salva
Casa.it
1/22
  • Street View
  • Map