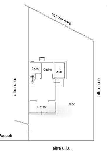
Villetta a schiera in vendita Via Giovanni Pascoli , Anzio
Salva
Casa.it
1/26
  • Street View
  • Map