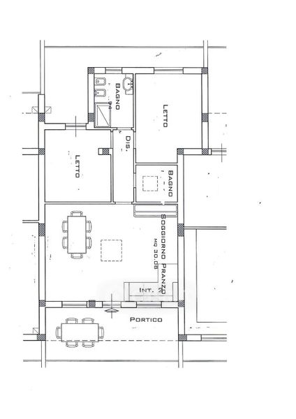
Villetta a schiera in vendita Via delle Genziane 3, Ardea
Salva
Casa.it
1/24
  • Street View
  • Map