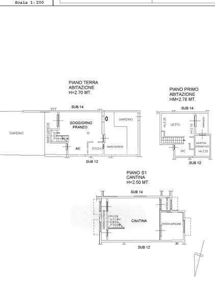
Villetta a schiera in vendita Via Sasso Manziana , Cerveteri
Salva
Casa.it
1/29
  • Street View
  • Map