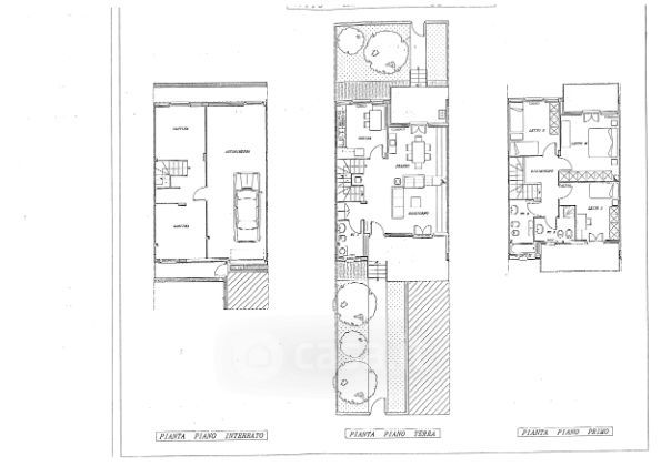
Villetta a schiera in vendita Via Ischia , Cisterna di Latina
Salva
Casa.it
1/28
  • Street View
  • Map