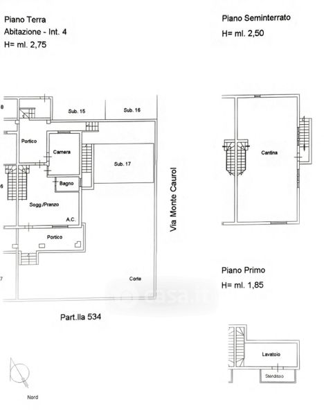
Villetta a schiera in vendita Via Monte Cauriol , Fiumicino
Salva
Casa.it
1/32
  • Street View
  • Map