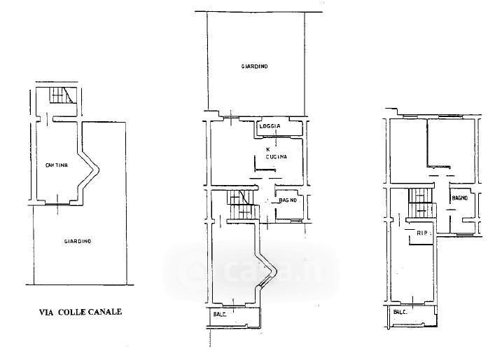
Villetta a schiera in vendita Via Colle Canale 23, Montelibretti
Salva
Casa.it
1/27
  • Street View
  • Map