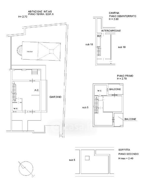
Villetta a schiera in vendita Via del Fosso Scilicino 15, Roma
Salva
Casa.it
1/61
  • Street View
  • Map