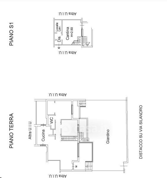
Villetta a schiera in vendita Via Silandro , Roma
Salva
Casa.it
1/46
  • Street View
  • Map