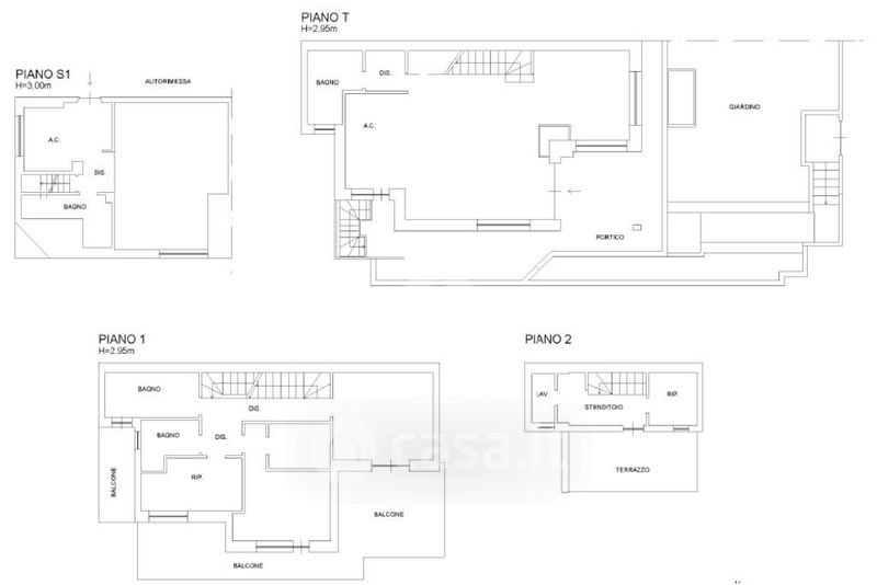
Villetta a schiera in vendita Via Vincenzo Arangio Ruiz 30, Roma
Salva
Casa.it
1/50
  • Street View
  • Map