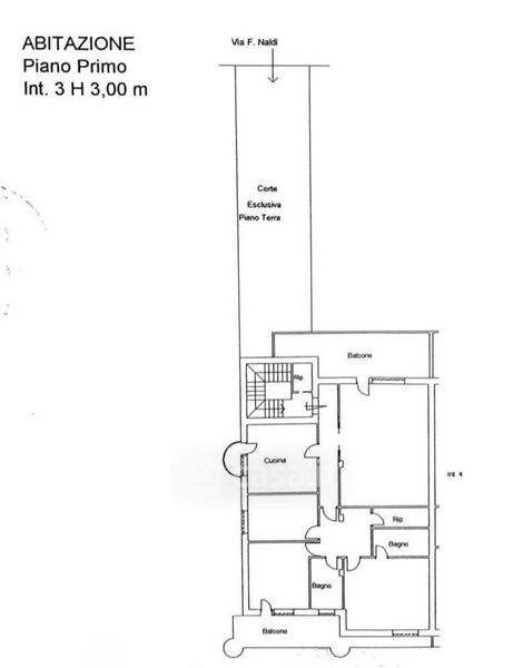
Villetta a schiera in vendita Via Filippo Naldi , Roma
Salva
Casa.it
1/23
  • Street View
  • Map