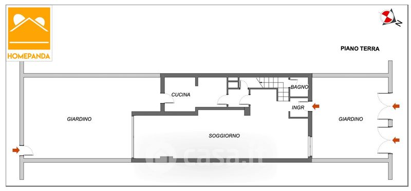
Villetta a schiera in vendita Via Asclepiade , Roma
Salva
Casa.it
1/33
  • Street View
  • Map