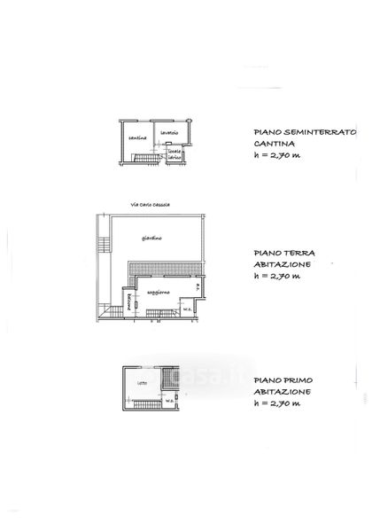
Villetta a schiera in vendita Via Carlo Cassola 85, Roma
Salva
Casa.it
1/47
  • Street View
  • Map