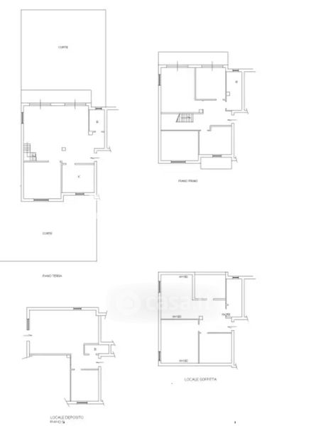
Villetta a schiera in vendita Via Cesare Reverdito 49, Roma
Salva
Casa.it
1/47
  • Street View
  • Map