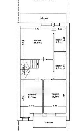
Villetta a schiera in vendita Via delle Ville del Borgo , Tarano
Salva
Casa.it
1/28
  • Street View
  • Map