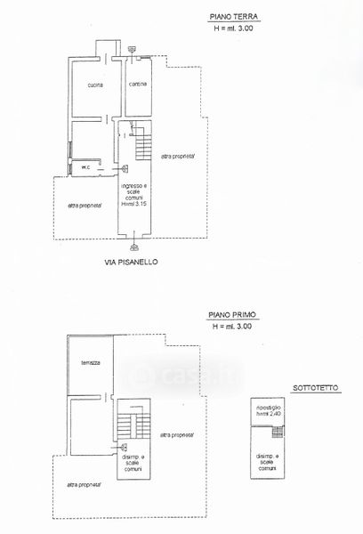
Villetta a schiera in vendita Via Pisanello 59, Ameglia
Salva
Casa.it
1/15
  • Street View
  • Map