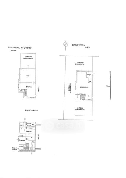
Villetta a schiera in vendita Via Campo dei Fiori , Angera
Salva
Casa.it
1/28
  • Street View
  • Map