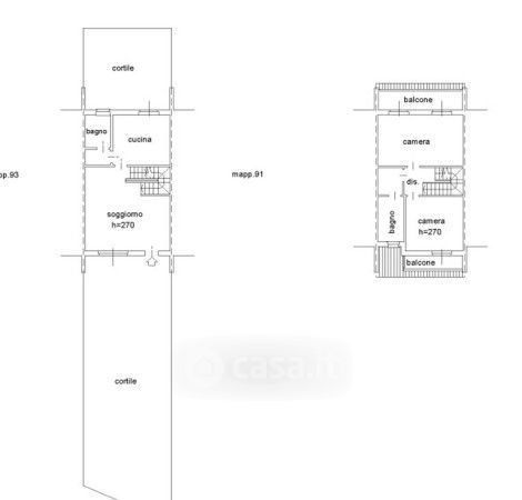
Villetta a schiera in vendita Via Rozzano 10, Assago
Salva
Casa.it
1/25
  • Street View
  • Map