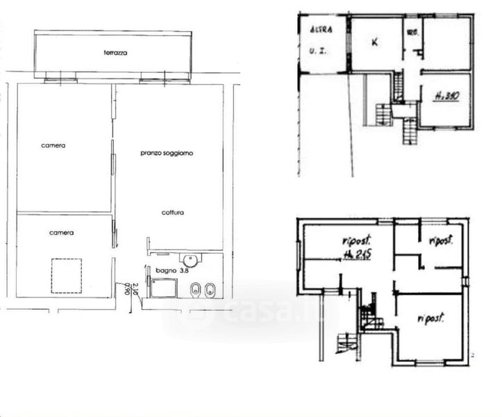
Villetta a schiera in vendita Via delle Querce 53, Azzano Mella
Salva
Casa.it
1/17
  • Street View
  • Map