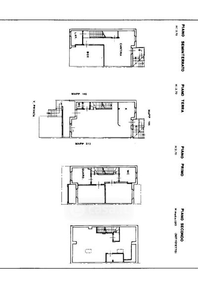
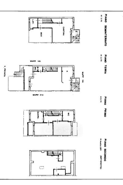
Villetta a schiera in vendita Via don Silvio Coira 12, Basiglio
Salva
Casa.it
1/19
  • Street View
  • Map