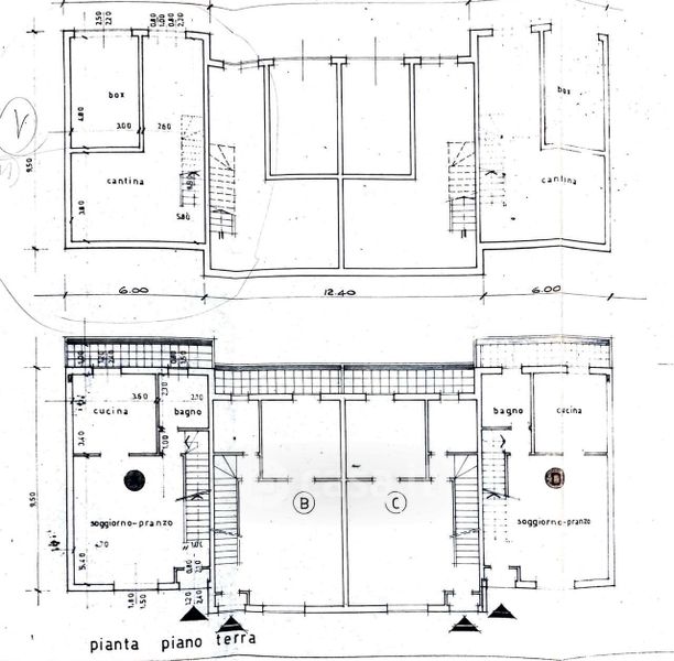
Villetta a schiera in vendita Via U. Foscolo 27, Boltiere
Salva
Casa.it
1/22
  • Street View
  • Map