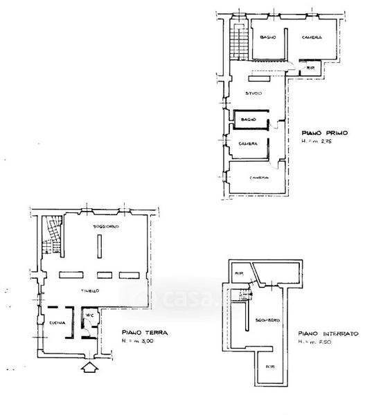
Villetta a schiera in vendita Via Stanga Busca 2, Carate Brianza
Salva
Casa.it
1/36
  • Street View
  • Map