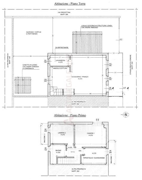
Villetta a schiera in vendita Via Crocettina 2, Casale Cremasco-Vidolasco
Salva
Casa.it
1/33
  • Street View
  • Map