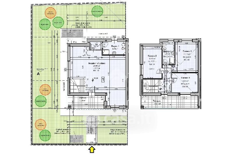
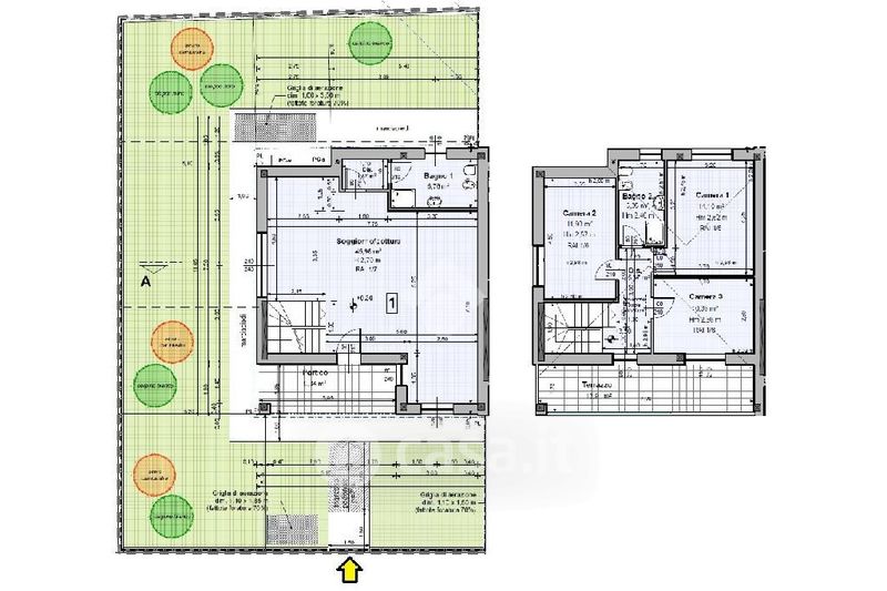
Villetta a schiera in vendita Via G. Marconi 12, Cassano d'Adda
Salva
Casa.it
1/21
  • Street View
  • Map