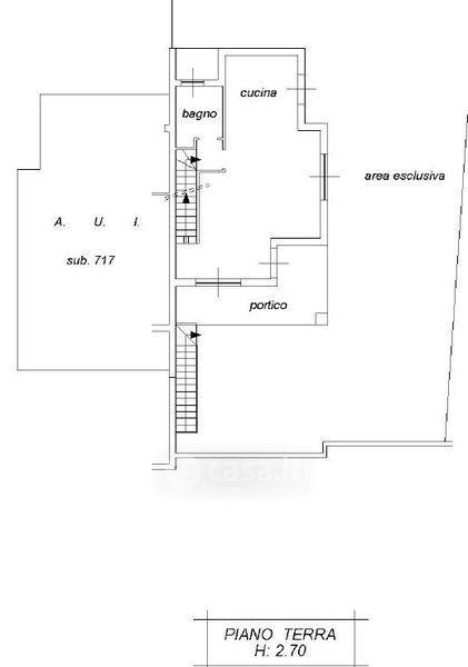
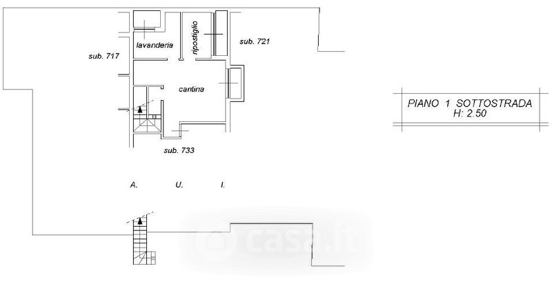
Villetta a schiera in vendita Via Loreto , Cenate Sotto
Salva
Casa.it
1/31
  • Street View
  • Map