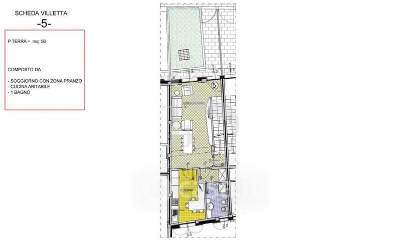
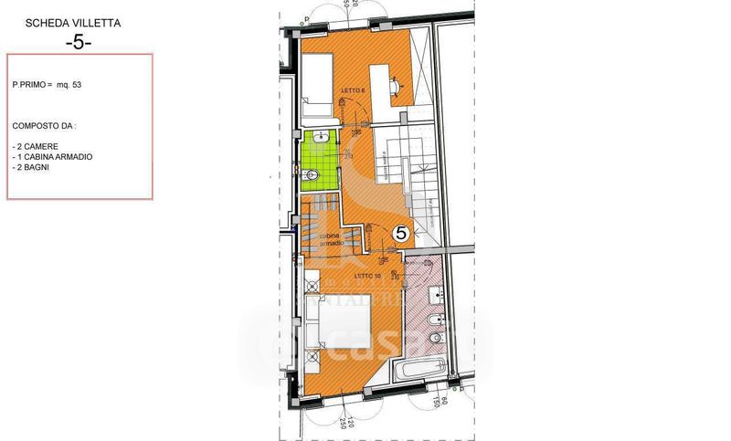
Villetta a schiera in vendita Via Nazario Sauro 12, Concorezzo
Salva
Casa.it
1/33
  • Street View
  • Map