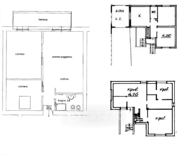
Villetta a schiera in vendita Via Carlo Bonetti 13, Cremona
Salva
Casa.it
1/17
  • Street View
  • Map