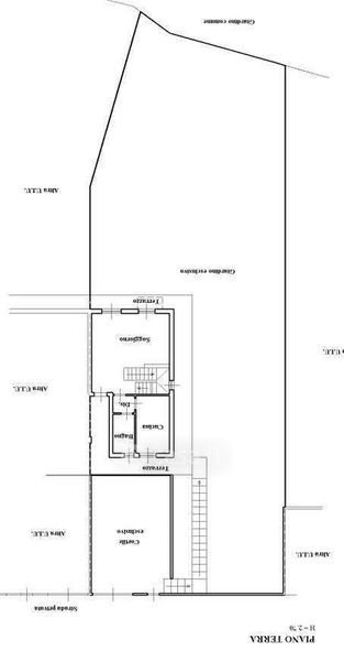
Villetta a schiera in vendita Via Grazia Deledda 2, Cusago
Salva
Casa.it
1/38
  • Street View
  • Map