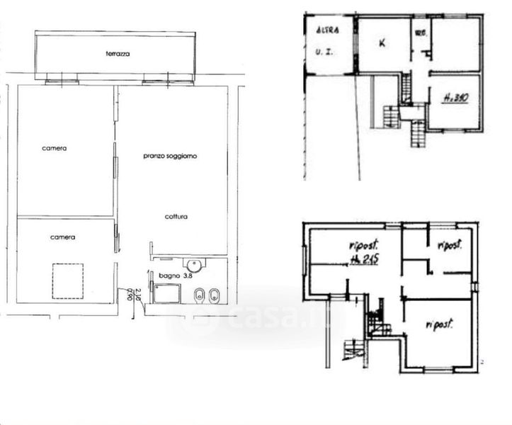
Villetta a schiera in vendita Via Moretto 2, Ghedi
Salva
Casa.it
1/29
  • Street View
  • Map