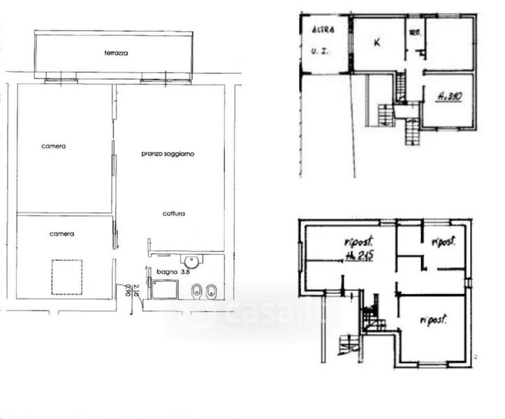
Villetta a schiera in vendita Via Trento 14, Lumezzane
Salva
Casa.it
1/17
  • Street View
  • Map