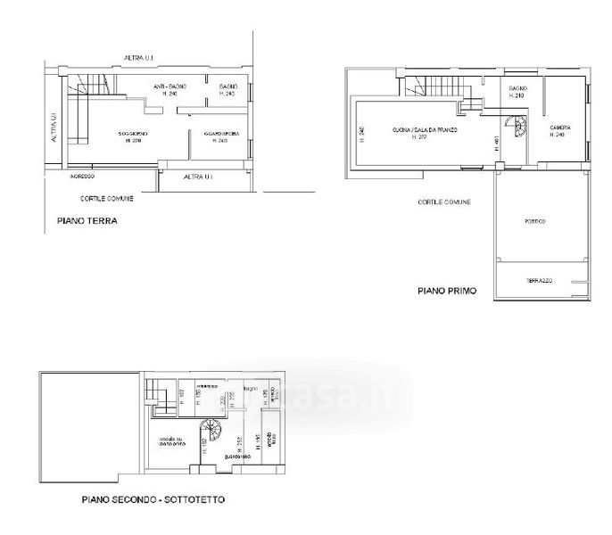
Villetta a schiera in vendita Via Ponte del Giuscano 8, Milano
Salva
Casa.it
1/27
  • Street View
  • Map