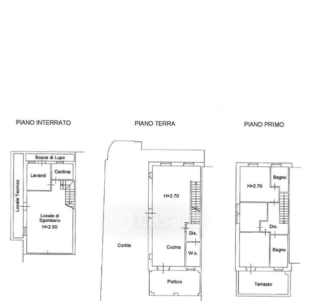
Villetta a schiera in vendita Via Brindisi 15, Palazzolo sull'Oglio
Salva
Casa.it
1/42
  • Street View
  • Map