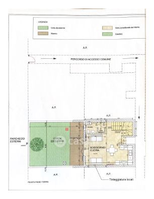
Villetta a schiera in vendita Via Benaco , Puegnago del Garda
Salva
Casa.it
1/42
  • Street View
  • Map