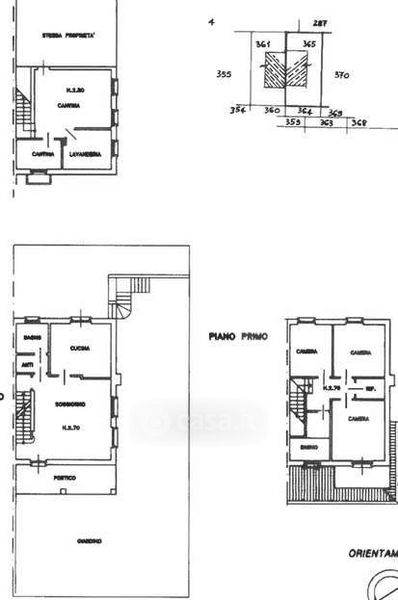
Villetta a schiera in vendita Via Valsasino 35, San Colombano al Lambro
Salva
Casa.it
1/17
  • Street View
  • Map