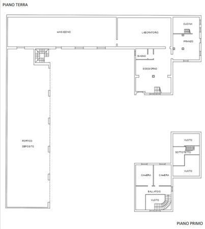
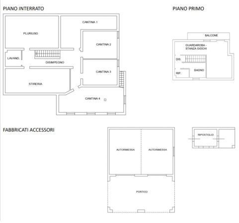
Villetta a schiera in vendita Via Vesconi 12, San Paolo
Salva
Casa.it
1/31
  • Street View
  • Map