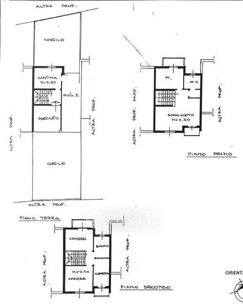
Villetta a schiera in vendita Via Rozza , Sant'Angelo Lodigiano
Salva
Casa.it
1/47
  • Street View
  • Map