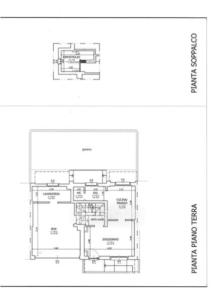
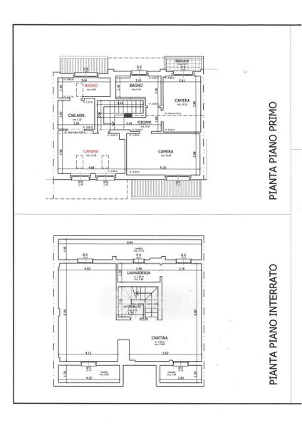
Villetta a schiera in vendita Via Feltre , Seveso
Salva
Casa.it
1/33
  • Street View
  • Map