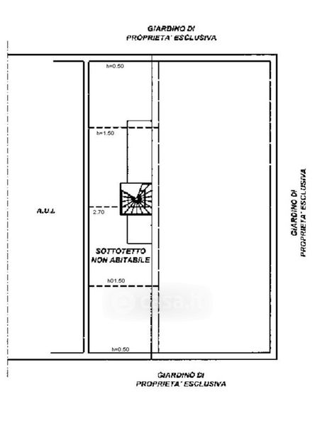
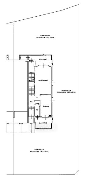
Villetta a schiera in vendita Via Bambini di Beslan 5, Tribiano
Salva
Casa.it
1/118
  • Street View
  • Map