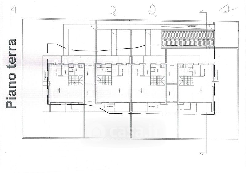
Villetta a schiera in vendita Via Luigi Cadorna , Turate
Salva
Casa.it
1/34
  • Street View
  • Map