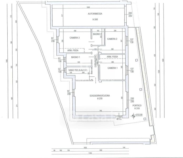
Villetta a schiera in vendita Via Dossello , Villanuova sul Clisi
Salva
Casa.it
1/11
  • Street View
  • Map