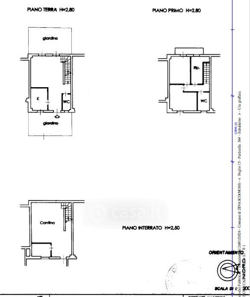
Villetta a schiera in vendita Via L. Cadorna 16, Zinasco
Salva
Casa.it
1/52
  • Street View
  • Map