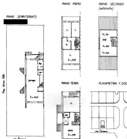
Villetta a schiera in vendita Via Fornace , Monte Porzio
Salva
Casa.it
1/24
  • Street View
  • Map