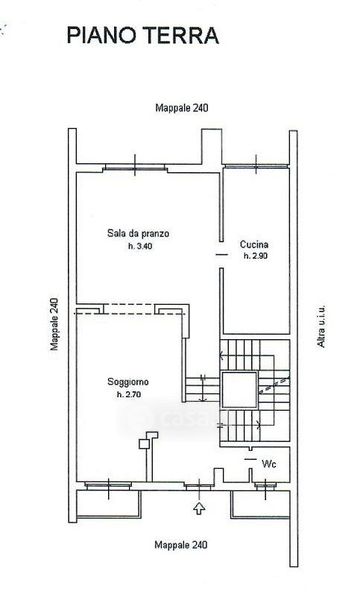
Villetta a schiera in vendita Via Superga 53, Baldissero Torinese
Salva
Casa.it
1/75
  • Street View
  • Map