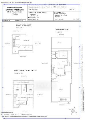
Villetta a schiera in vendita Via Pavarolo 31, Baldissero Torinese
Salva
Casa.it
1/61
  • Street View
  • Map