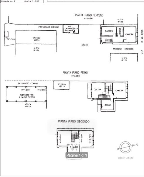
Villetta a schiera in vendita Via B. Debais 28, Candelo
Salva
Casa.it
1/45
  • Street View
  • Map