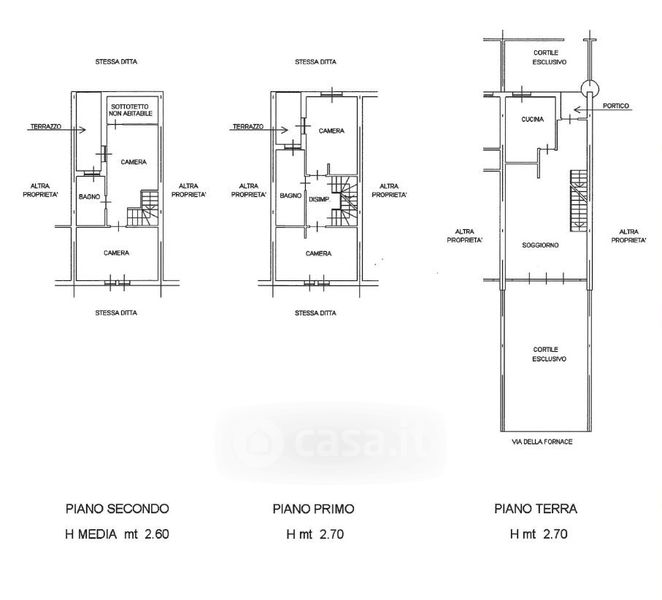
Villetta a schiera in vendita Via della Fornace , Castiglione Torinese
Salva
Casa.it
1/39
  • Street View
  • Map